Oficinas y Laboatorios Servicio Meteorológico Nacional

Tipo: Edificio Institucional

Ubicación: Palermo, Ciudad Autónoma de Buenos Aires, Argentina.

Superficie: 3600m2

Estado: Construído
Año: 2010

Rol desempeñado: autores del proyecto concursado.

Créditos:
Proyecto: Estudio Frías + Tomchinsky / 2MGG Arquitectos
Equipo de trabajo: Santiago Frías, Javier Tomchinsky, Romano Malfatti, Rita Malfatti, Julian Mastroleo, Andrés Popowski, Nicolás Nucifora





Con el objeto de mejorar de la infraestructura del Servicio Meteorológico Nacional (S.M.N.), el Ministerio de Defensa encomendó la realización de su nueva sede en el predio situado en Av. Dorrego 4019 de la Ciudad Autónoma de Buenos Aires, ubicado dentro del Parque 3 de Febrero y frente al Aeroparque; concentrando diversos programas que hasta el momento funcionan por separado entre las distintas sedes del S.M.N.







>fundamentación conceptual de la arquitectura propuesta


Con el objeto de mejorar de la infraestructura del Servicio Meteorológico Nacional (S.M.N.), el Ministerio de Defensa encomendó la realización de su nueva sede en el predio situado en Av. Dorrego 4019 de la Ciudad Autónoma de Buenos Aires, ubicado dentro del Parque 3 de Febrero y frente al Aeroparque; concentrando diversos programas que hasta el momento funcionan por separado entre las distintas sedes del S.M.N.

El predio contiene un conjunto disperso de varios edificios, de muy distinto valor arquitectónico, ocupados por diversas dependencias del Ministerio de Defensa. Se elabora entonces en primer lugar un Plan Maestro que define cuáles edificios se conservarán, cuáles se demolerán, la distribución programática y las etapas de obra. Por especial recomendación de los proyectistas, el comitente opta por reciclar la infraestructura existente en lugar de realizar obras nuevas dentro del predio; economizando tiempos de obra, costos (importantes en la estructura, teniendo en cuanta la baja resistencia de los suelos de esta zona próxima al Río de la Plata) y reduciendo el impacto ambiental de la transformación del sitio; y permitiendo además el permiso de obra especial del Gobierno de la Ciudad, por estar situado dentro del área protegida del Parque 3 de Febrero.

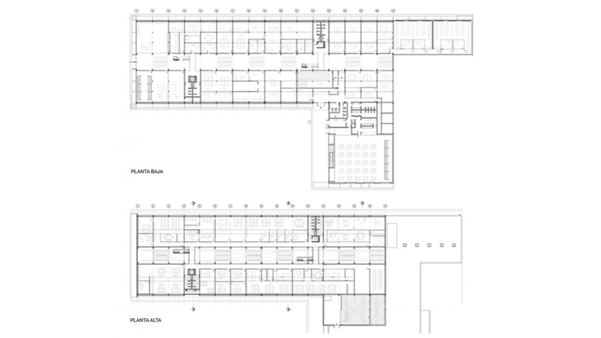
La presente obra está comprendida en la Etapa 1 del Plan Maestro, y consiste en la remodelación y refuncionalización de un edificio de 2800 m2 cubiertos, ocupado por talleres y depósitos, más dos construcciones adosadas a dicho edificio, que suman otros 750 m2 cubiertos; para alojar oficinas administrativas, oficinas operativas, oficinas de investigación, laboratorios y programas de servicios (comedor para 200 personas, Data-Center, sanitarios, vestuarios, salas de máquinas y depósitos), con un total de 4400 m2 entre nuevos y reciclados. Consta de dos naves de 80 m de largo de doble altura con estructura de pórticos de hormigón armado modulada regularmente cada 5 metros y losas en forma de bóveda, unidas por una calle central que recibe luz cenital a través de claraboyas. En suma, características que lo hacían potencialmente apropiado para alojar el programa requerido con buena calidad espacial y gran flexibilidad, y que motivaron su elección como edificio principal de la nueva sede del S.M.N. La intervención arquitectónica comprende las siguientes actuaciones, que se resumen en forma sintética agrupadas en los 3 grandes temas de reflexión que definen los proyectistas para esta obra:

>PREEXISTENCIAS:
Mantener la estructura de pórticos de hormigón armado y losas abovedadas del edificio principal, y el sector de entrepiso existente; -vaciarla de sus muros interiores y exteriores y sus intrincadas escaleras;

”CAJA” EXTERIOR
Cerrar la fachada frontal con una marquesina de hormigón armado que crea el espacio de acceso al edificio, y las fachadas laterales con carpinterías corredizas protegidas por parasoles de aluminio; para ganar en iluminación y en visuales hacia el exterior, de importante valor paisajístico y con un arbolado de gran calidad; -cubrir las bóvedas con una segunda cubierta, metálica, liviana, generando una cámara de aire ventilada entre ambas; que, en conjunto con los parasoles, permitan ganar eficiencia en el control térmico del edificio de forma pasiva, por ventilación natural, reduciendo el consumo de energía.

>ESPACIO INTERIOR
Construir entrepisos metálicos en seco, completando el entrepiso existente en toda la superficie de las naves; -hacerlos accesibles mediante 2 nuevos conjuntos de escaleras-puentes en la calle central, asociados con nuevos núcleos sanitarios y de ascensores, -organizar y dividir el espacio para las oficinas y laboratorios con tabiquerías en seco y carpinterías modulares -dotarlas de instalación de aire acondicionado mediante equipos tipo roof-top ubicados en la terraza de la calle central, y de una instalación eléctrica e iluminación proyectadas con el criterio de máxima flexibilidad posible para configurar interiormente las oficinas. En síntesis, la arquitectura del edificio quiere ser el simple resultado de elegir los caminos más directos para hacer habitable una infraestructura existente, haciéndose cargo de los condicionantes de su tiempo y su lugar.