Nuevo Edificio Dirección de Tránsito

Tipo: Edificio Insttucional + nueva pista de exámenes y estacionamientos

Ubicación: Partido Malvinas Argentinas, Prov. Buenos Aires, Argentina.

Superficie cubierta: 1966m2

Superficie descubierta: 4274m2

Estado: proyecto licitatorio entregado.
Año: 2023
Rol desempeñado: Autores proyecto de arquitectura

Créditos:
Coordinación general: Ms.Arq. Javir Tomchinsky, arq. Martín Gallino
Equipo de Proyecto: arq. Andrés Popowski, arq. Ramiro Clivio, arq. Juan Ignacio Carusi, arq. Agustín Sposaro, arq. Gabriel Caprarulo
Secretaría de Obras Públicas y Planificación Urbana: Ing. Roberto Caratazzolo, Arq. Norberto Iglesias, Arq. Carlos Di Pascale.






El nuevo edificio de la Dirección de Tránsito de la Municipalidad de Malvinas Argentinas es un proyecto integral que albergará la Dirección de Tránsito y otras dependencias municipales, proporcionando un espacio multifuncional adaptable a futuras necesidades. Ubicado estratégicamente en el Masterplan urbano Diharce, busca crear una identidad arquitectónica contemporánea a través de una optimización de recursos y un caracter sostenible, respaldando las políticas urbanas innovadoras del Municipio.




IMPLANTACIÓN

El proyecto se encuentra estratégicamente ubicado en el partido de Malvinas Argentinas, en la provincia de Buenos Aires, en el punto de encuentro entre la Ruta Provincial 197 y el proyecto urbano en desarrollo para el predio conocido como ex - Vivero Diharce.

El edificio se presenta entonces como un elemento emblemático dentro de este enclave, constituyendo un hito de referencia para el contexto urbano. A través de un diseño contemporáneo busca destacarse como un referente representativo de la obra pública del municipio, transmitiendo una imagen de innovación, sostenibilidad y eficiencia en el aprovechamiento de los recursos de la obra pública.




PROGRAMA DE NECESIDADES /

El proyecto se compone de dos elementos principales: un edificio para la Dirección de Tránsito y futuras dependencias municipales anexas,  (2000 m2 cubiertos de superficie ponderada a construir, incluyendo áreas semicubiertas al 50% y descubiertas al 25%)  y una pista destinada a exámenes de tránsito (4200m2 descubiertos) brindando un apoyo integral a las actividades de esta institución municipal.

El edificio será un espacio arquitectónico multifuncional que albergará, además de la Dirección de Tránsito, una planta libre y una terraza ampliable, brindando la posibilidad de acoger otras delegaciones u organismos municipales. Esta flexibilidad en el diseño permitirá adaptarse a futuras necesidades y reorganizaciones administrativas, asegurando un entorno dinámico y eficiente para el desarrollo de las actividades del Municipio de Malvinas Argentinas. La versatilidad espacial del edificio garantizará una óptima utilización de los recursos y una adecuada respuesta a los requerimientos funcionales, consolidando su carácter arquitectónico distintivo y su capacidad de adaptación a los cambios en el tiempo; evitando la necesidad de construir nuevos edificios pequeños, aprovechando también el suelo urbano disponible con la alta densidad que prevee el Plan Maestro del sector.




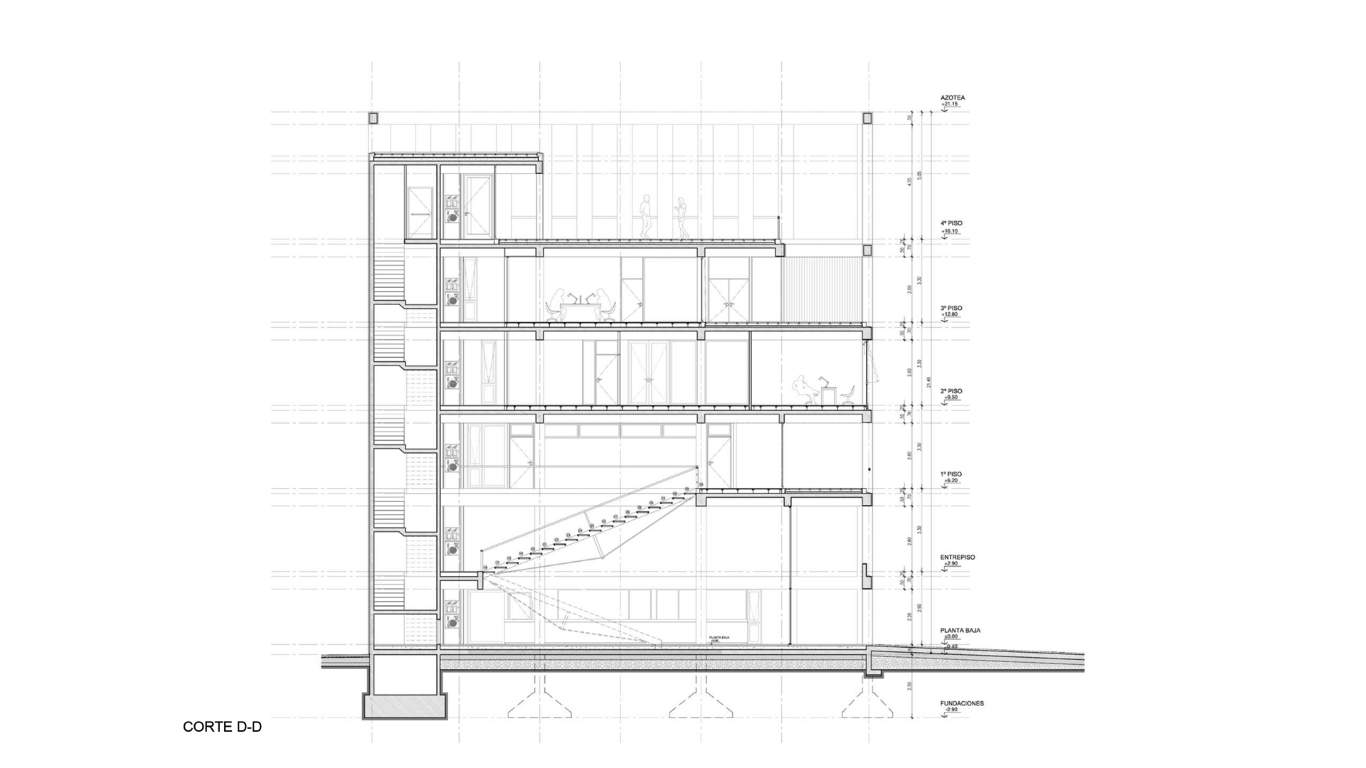
PLANTA BAJA (400m2)
El acceso al edificio se resuelve mediante una galería semicubierta que crea una transición entre el entorno exterior y el interior del edificio, brindando protección contra las inclemencias climáticas y resaltando el carácter del volumen arquitectónico.

Al ingresar al edificio, los usuarios son recibidos por un gran hall general en doble altura. Este espacio de gran impacto visual no solo cumple la función de recepción y espera, sino que también actúa como un punto de encuentro y conexión entre las diferentes áreas del edificio.

Las ventanillas y cajas de atención al público consideran la funcionalidad como la comodidad de los usuarios, a través de una disposición estratégica que asegura una atención eficiente y fluida. Las cajas que manejna valores se encuentran en un sector resguardado para su seguridad, protegidas por pantallas,  con un depósito seguro, y un acceso independiente de la entrada general.


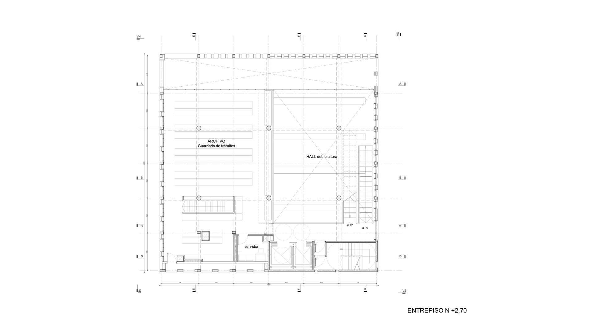
ENTREPISO (218m2):
El acceso se da desde el Hall de PB a través de la escalera metálica principal o de forma privada por las oficinas de PB.  Se presenta como un espacio arquitectónico de relevancia funcional ya que alberga el archivo y depósito de la Dirección de Tránsito. Constituye un gran espacio de 160m2 para el resguardo y organización de documentos y materiales relacionados con las actividades administrativas.


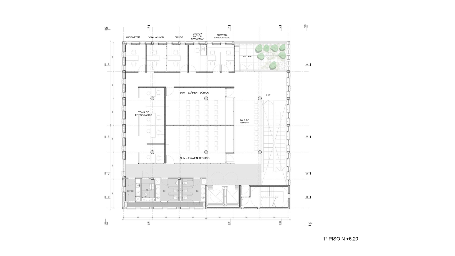
1° PISO (400m2)
El primer piso, accesible a través de la galería semicubierta desde la planta baja, está dedicado exclusivamente a los exámenes de otorgamiento de licencias de conducir. Al subir por la escalera principal, se llega a un amplio hall con área de espera y salida a un balcón semicubierto que aporta iluminación natural y calidad espacial a este ambiente

En este nivel se encuentran dos aulas para los exámenes teóricos, (separadas por tabiques en seco, con la posibilidad de integrarse en un único gran SUM) así como gabinetes especializados para exámenes de audiometría, oftalmología, evaluación clínica, grupo y factor sanguíneo, y electrocardiogramas. También se dispone de una sala dedicada a la toma de fotografías para las licencias de conducir.


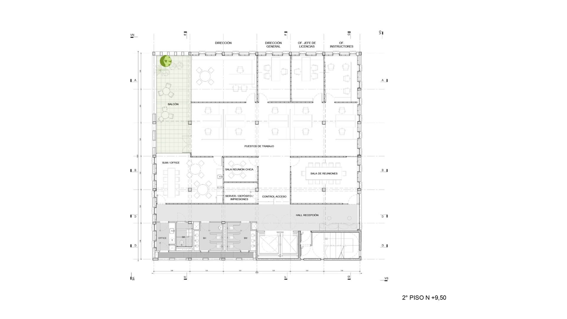
2DO PISO (400m2)
El segundo piso, al que se accede a través de ascensores o escalera de incendio, está dedicado exclusivamente a las oficinas administrativas de la Dirección de Tránsito. Desde un hall/recepción, que cruza toda la planta en sentido este oeste se lleva a cabo el control de acceso al área; el mismo cuenta con iluminación natural y ventilación cruzada.

el programa administrativo se divide en dos áreas: una destinado a los puestos de trabajo generales y otra para los puestos de Dirección, que incluyen Dirección, Dirección General, oficina de jefes de licencia y oficina de instructores. Además, se han previsto espacios comunes como una sala de reuniones y un salón de usos múltiples (SUM) con área de office.

Todos los espacios poseen iluminación y ventilación natural, asegurando un ambiente saludable y confortable para el personal. Además, un amplio balcón corrido semicubierto, que se extiende a lo largo del piso, le confiere un carácter arquitectónico distintivo y proporciona un espacio de expansión y esparcimiento para los usuarios.


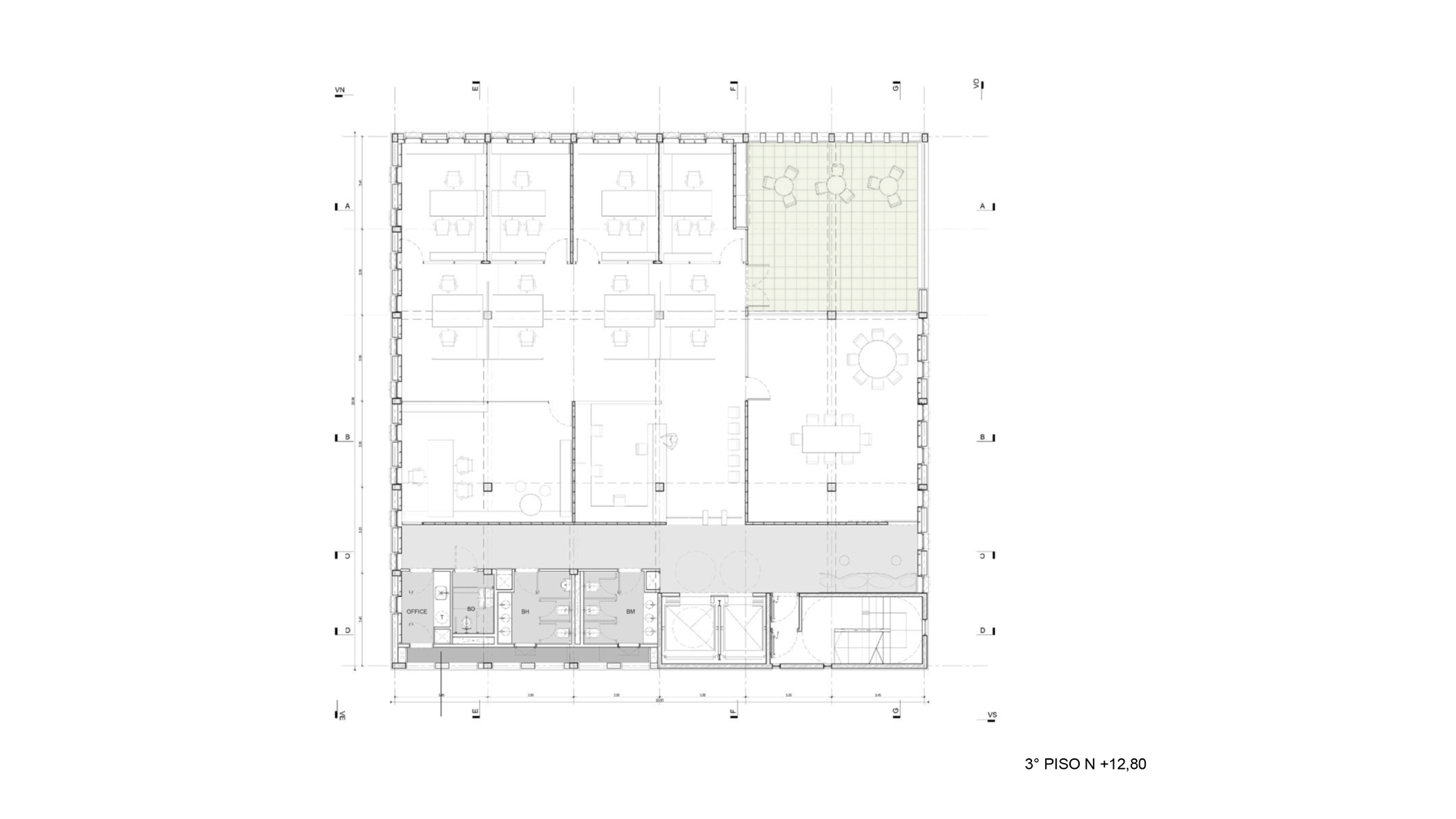
3° PISO (400m2)
El tercer piso consiste en una planta libre de oficinas que estará disponible en un futuro para otros organismos municipales. Cuenta al igual que los niveles anteriores con un hall de recepción y núcleo sanitario que atraviesa toda la planta en sentido este-oeste y aprovecha así la iluminación y ventilación natural.  

Se destaca una gran terraza propia que da carácter jerárquico a esta planta y proporciona un entorno de iluminación y ventilación predilectas en el conjunto edilicio. La misma es de doble altura y proporciones cuadradas y desde esta se perciben vistas panorámicas hacia el parque del batallón y la RP197.

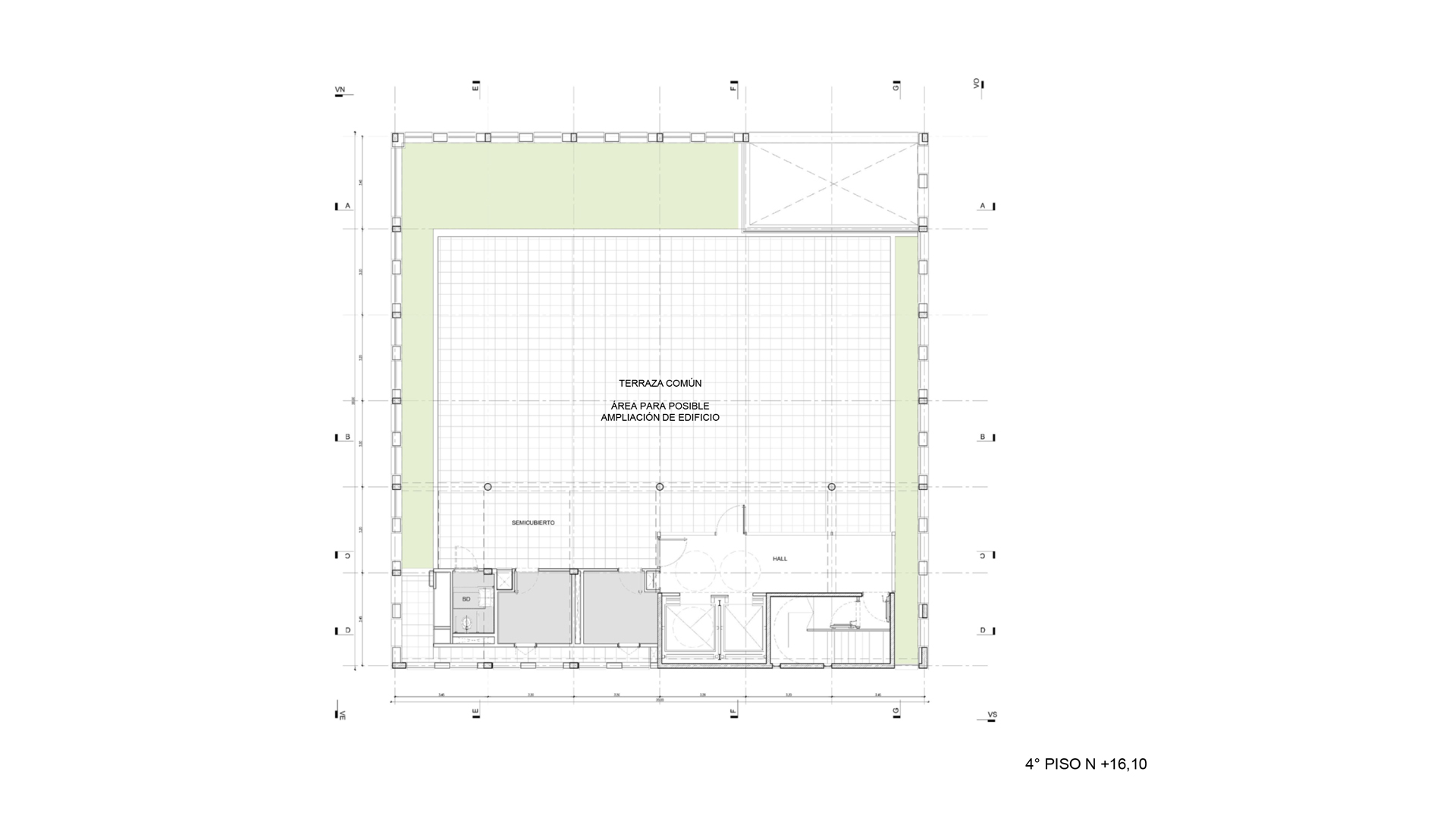
4° PISO – TERRAZA (260m2 descubiertos, 140m2 cubiertos)
El cuarto piso alberga una terraza común como remate distintivo del edificio. Delimitada por un revestimiento murario calado en la fachada y por un cantero perimetral de césped y plantas, se crea un entorno íntimo de calidad, con excelentes visuales hacia el entorno urbano y a su vez protegido de los vientos. 

Además de ser un espacio versátil de expansión, la terraza constituye un área que podría ser ampliada en el futuro para aumentar los metros cuadrados cubiertos del edificio, previendo la posibilidad de albergar nuevos usos municipales en este espacio adicional. A tal efecto, se dispone un piso exterior flotante que permite ser fácilmente desmontado y reemplazado por un piso técnico similar al del resto de las plantas.



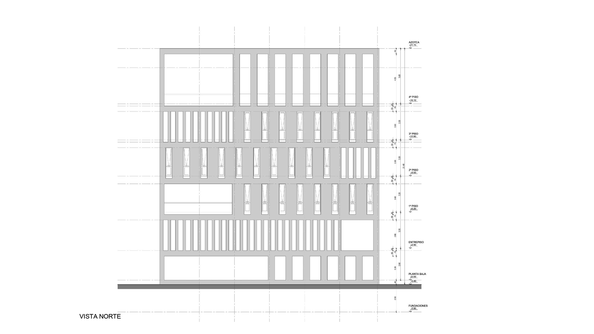
MATERIALIDAD

La estructura del edificio será independiente y regular, construida con hormigón armado y luces pequeñas. La misma quedará a la vista en todos los niveles, contribuyendo al lenguaje de simpleza y austeridad del conjunto arquitectónico.

La sencillez constructiva de la propuesta se logra también mediante el uso de bloques cerámicos y carpinterías de aluminio moduladas y sistematizadas como resolución para el revestimiento perimetral en las fachadas del edificio.

Una modulación alternada de llenos y vacíos proporciona al desarrollo del lenguaje de las fachadas una disminución considerable en las superficies vidriadas en relación a las superficies de mampostería.  Esto garantizará, sin comprometer la calidad constructiva y estética del edificio, una eficiente aislación térmica y una reducción significativa de los costos, no solo durante la ejecución del edificio sino también en cuanto al mantenimiento del mismo.

En el interior de las plantas de oficina se dará especial prioridad a una flexibilidad de uso a través del tiempo, mediante tabiquerías de construcción en seco y pisos técnicos, lo que permitirá realizar futuras modificaciones en la distribución de las oficinas y replanteo de instalaciones eléctricas y de todo tipo de manera eficaz.


SUSTENTABILIDAD

El proyecto se destaca por su enfoque sostenible y la integración de elementos arquitectónicos que promueven la eficiencia energética y la conservación de recursos. Para lograrlo, se han aplicado estrategias específicas.

En cuanto a la eficiencia térmica, los muros perimetrales cuentan con un revoque térmico en el exterior y un emplacado de Durlock con aislación térmica de lana de vidrio en la cara interior. Estos elementos, sumados a las carpinterías con Doble Vidriado Hermético (DVH) contribuyen a mantener una temperatura confortable en el interior del edificio, evitando completamente el efecto de “puentes térmicos” reduciendo la dependencia de sistemas de calefacción y refrigeración convencionales.

Además, se incorporarán paneles solares en la azotea del edificio. Estos paneles captarán la energía solar para su aprovechamiento y posterior devolución a la red eléctrica. Esta medida no solo reduce la demanda de energía convencional, sino que también promueve el uso de fuentes renovables y contribuye a la disminución de emisiones de carbono.

Otro aspecto destacado es la captación de agua de lluvia mediante tanques cisterna. Esta agua recolectada se utilizará posteriormente en actividades de riego, reduciendo la dependencia de fuentes de agua convencionales y promoviendo el uso responsable de los recursos hídricos.

Estas estrategias sustentables demuestran el compromiso del proyecto y del Municipio con la protección del medio ambiente y la búsqueda de soluciones arquitectónicas que minimicen el impacto ambiental. Además, refuerzan la imagen contemporánea y vanguardista del edificio, posicionándolo como un ejemplo de diseño responsable y consciente.




VIABILIDAD PRESUPUESTARIA

El proyecto del nuevo edificio de la Dirección de Tránsito ha sido desarrollado con un enfoque arquitectónico inteligente, sin comprometer su calidad ni los recursos del Estado. Como resultado, hemos estimado un precio de 850 USD/m2, (considerando un valor de USD=$490, y precios con base Mayo de 2023) con un coeficiente de pase total sobre el costo de 1,65 (que incluye IVA, beneficios, gastos generales e impuestos), para todos los estandares de calidad antedichos.

Es importante destacar que este valor es revisable y puede ajustarse según necesidades, reduciendo algunos estándares. Por ejemplo, es posible considerar la eliminación de elementos como el grupo electrógeno, reducir los espesores de revoque térmico en las fachadas, eliminar el DVH de algunos cristales, prescindir de aislaciones de lana de vidrio en los tabiques de la fachada, eliminar 1 de los 2 ascensores previstos, postergándolo para una etapa futura, o incluso eliminar estándares de sustentabilidad como los paneles solares y la captación de agua de lluvia, entre otros; permitiendo reducir el presupuesto en hasta un 35% aproximadamente.

También se evalúa en línea con esta visión de flexibilidad presupuestaria, la posibilidad de licitar por separado la construcción de la pista de exámenes de tránsito. Este enfoque brinda la oportunidad de optimizar los recursos disponibles y garantizar la evolución del proyecto en etapas sin comprometer la funcionalidad del conjunto edilicio.


De esta manera, se pretende generar una nueva identidad arquitectónica para los edificios municipales, continuando las buenas prácticas iniciadas con el Palacio Municipal y adaptada a la contemporaneidad; que se constituya en la manifestación arquitectónica propia de las innovadoras políticas urbanas que viene desarrollando el Municipio, para beneficio de su comunidad.