MINISTERIO DE SALUD - CABA
3er premio Concurso Nacional de Anteproyectos


Tipo: Edificio Institucional - Concurso

Ubicación: Barracas, Ciudad Autónoma de Buenos Aires, Argentina.

Superficie: 9800m2

Estado: Proyecto
Año: 2015

Rol desempeñado: autores del proyecto concursado.

Créditos:
Proyecto: estudio Frías + Tomchinsky Arquitectos
Equipo de trabajo: Santiago Frías, Javier Tomchinsky, Julian Mastroleo, Andrés Popowski, Nicolás Nucifora, Marco Yacachury    





El traslado de la sede del Ministerio de Salud a la zona sur de la ciudad posibilita un nuevo modo de convivencia entre los edificios institucionales y su entorno, marcado por la vivencia de espacios verdes, en un contexto amable, alejado de la densidad y la vorágine del pleno centro porteño.

La localización es la oportunidad para abrir vistas a un predio parquizado de excelente calidad paisajística, históricamente oculto al barrio; La arquitectura será la oportunidad para generar nuevo valor público, impulsando el desarrollo urbano de esta zona de la ciudad para convertirla, finalmente, en una nueva centralidad.







>fundamentación conceptual de la arquitectura propuesta

Entendemos que el desafío inicial que se nos platea, es demostrar que el traslado de la sede del Ministerio de Salud a la zona sur de la ciudad (y más específicamente a este predio), posibilita un nuevo modo de convivencia entre los edificios institucionales y su entorno, marcado por la vivencia de espacios verdes, en un contexto amable, alejado de la densidad y la vorágine del pleno centro porteño; en la misma línea, que la nueva sede del Gobierno de la Ciudad a inaugurarse próximamente en Parque Patricios, .

Entendemos además que se trata de una oportunidad para abrir vistas a un predio parquizado de excelente calidad paisajística, que históricamente ha permanecido oculto al barrio por sendos muros; generando nuevo valor público e impulsando el desarrollo urbano de esta zona de la ciudad para convertirla, finalmente, en una nueva centralidad, sostenible urbanísticamente y con mayor impronta del verde en su paisaje.


>OBJETIVOS

Respecto al SITIO:
>generar transparencias y visuales pasantes hacia el interior del predio a nivel de la planta baja
>preservar las arboledas al máximo, e introducir nuevos ejemplares de tipas para consolidar la presencia de esta especie en la composición del paisaje (de gran belleza y de identidad muy propia de la ciudad de Buenos Aires).
>privilegiar vistas hacia las arboledas desde los espacios de trabajo
>alinearse con las edificaciones existentes del SAME, consolidando el frente urbano hacia Av. Amancio Alcorta, y generar una cierta distancia hacia el Pabellón Koch, para respetar su fuerte impronta y ponga de relevancia su valor patrimonial.

Respecto al PROGRAMA:
>orientar las oficinas preponderantemente hacia el norte y hacia el sur, y protegerlas del sol del este y del oeste
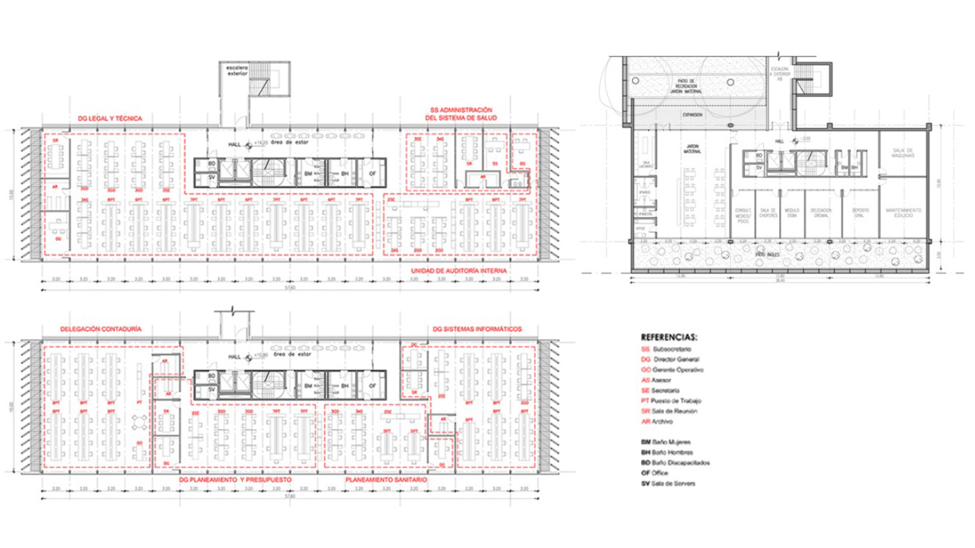
>maximizar la flexibilidad y la eficiencia de las plantas tipo, evitando excesos de superficies de circulaciones respecto a las superficies útiles de trabajo.
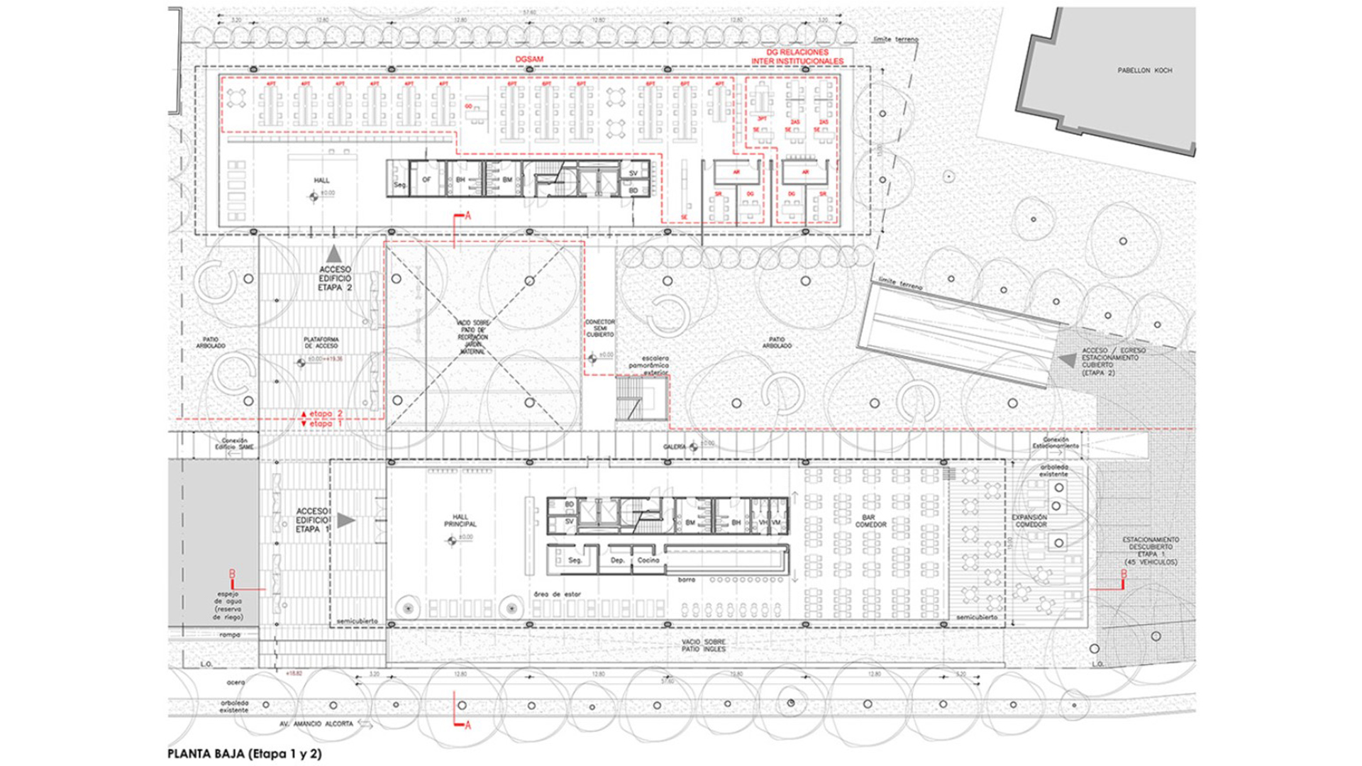
>disponer los programas de servicios generales para todo el conjunto (comedor, jardín maternal, estacionamientos) accesibles desde planta baja, con buena conexión peatonal.
>evitar inconvenientes funcionales durante la ejecución de la etapa 2, minimizando el contacto entre ambos edificios



>propuesta

>MORFOLOGIA
La propuesta se desarrolla en dos volúmenes en tira paralelos a la calle, de planta baja y cuatro pisos (tomando la altura de cornisa del pabellón Koch), alineadas con los edificios existentes, y desfasadas entre sí para generar un espacio de acceso hacia el lado del SAME sobre la Av. Amancio Alcorta, (con carácter de acceso principal de todo el conjunto de edificaciones del predio, por medio de una plataforma desde la cual se accede a ambos edificios), y un retiro hacia el Pabellón Koch. El Edificio 1 se dispone en el volumen hacia la avenida, consolidando el frente urbano ya desde la primera etapa; el Edificio 2, al fondo del terreno.
Los volúmenes se separan 20 m, definiendo un espacio central donde se propone introducir una doble hilera de tipas, resultando un patio arbolado con la escala de una calle o pequeña avenida típica de la ciudad de Buenos Aires, que recorre todo el largo del predio, vinculando los nuevos edificios del Ministerio con los del SAME.

>IMAGEN
De este modo, quedan definidos dos contenedores con pantallas acristaladas al N y al S, dispuestos entre hileras de árboles, que los protegen del sol y embellecen las vistas de sus espacios interiores; al tiempo que generan transparencias y reflejos de los árboles desde los espacios exteriores. Las pantallas se prologan hacia los extremos, conteniendo parasoles verticales hacia el Este y el Oeste, que al ser de chapa perforada también se suman al juego de transparencias.

>ESPACIALIDAD
La belleza está en los espacios exteriores. El interior del edificio es de máxima simpleza y austeridad; se cualifica con el sencillo recurso de generar una transparencia total hacia el parque, el espejo de agua y las copas de los árboles.

>PROGRAMA
>Se propone una galería semicubierta, a modo de conector de todos los servicios comunes del predio en la Planta Baja: vinculando el SAME y su estacionamiento, el hall del Edificio 1, el comedor de personal y el jardín maternal (por medio de la escalera hacia el patio ingles del subsuelo) y el nuevo estacionamiento descubierto. Su recorrido se cualifica con la presencia del espejo de agua y las arboledas.
>Se genera una planta tipo organizada para minimizar espacios de circulación con un pasillo central longitudinal y “doble crujía”, con oficinas orientadas al N y al S: lo cual resulta en una buena calidad espacial interior al tratarse en su gran mayoría de programas de trabajo abiertos, integrados en el espacio, que permiten que el pasillo tenga iluminación y ventilación natural. El núcleo de servicios alargado define espacios de llegada a cada planta con vista en ambos edificios hacia el espacio central. El módulo estructural de 3,20m constituye una buena medida tanto para despachos cerrados como para distanciar las islas de trabajo.
>Las oficinas con cierto grado de atención al público se ubican en los primeros dos niveles
>Un puente conector semicubierto entre ambos volúmenes funciona:
>como atajo acortando distancias entre reparticiones de etapa 1 y etapa 2
>como balcón-mirador al patio arbolado, en el punto privilegiado de perspectiva hacia la galería de tipas
>como llegada a la escalera semicubierta, que funciona como 2do medio de salida de emergencia reglamentario (para plantas mayores a 600m2) y al mismo tiempo como recorrido panorámico entre los árboles.

>PAISAJISMO
Se propone -idealmente- introducir ejemplares ya adultos de tipas, transplantadas por ej. desde los espacios públicos donde el GCABA está actualmente realizando obras que requieren desplazarlas; cuando no fuera posible, se plantarán especies nuevas. De las especies existentes se conservan todos los ejemplares más importantes, siendo el pequeño eucaliptus y la higuera que se ubican hacia el Sud-Este del predio los únicos que se propone reubicar, transplantándolos hacia el límite N del predio.



>definición tecnológica básica

>ESTRUCTURA Y ENTREPISOS

Se plantea la estructura en H°A°, con losas sin vigas tipo “Prenova”, alivianadas con esferas de plástico reciclado, aptas para grandes luces. La luz resultante es de 14,50 m entre hileras de columnas en la planta tipo. El volumen alivianado es de aproximadamente 30%, reduciendo en esa misma medida la sobrecarga de cálculo y por lo tanto economizando materiales. Al no requerir capiteles, simplifica enormemente los encofrados y agiliza los tiempos de ejecución, resultando también en importantes economías de obra.

Las columnas se disponen en el perímetro de la planta tipo, “atomizadas” cada 3,20 m,
para reducir sus secciones e integrarlas a la carpintería de fachada. Se encofran en tubos metálicos (que se mantienen como encofrado perdido) que colaboran estructuralmente con el relleno de H°A°, y facilitan la integración a las carpinterías de fachada.

A nivel del primer piso se genera una estructura de transición para concentrar las cargas de las columnas pequeñas de las plantas tipo, en unas pocas columnas de mayor sección en la planta baja: conformando vigas reticuladas con las columnas a las que se le adicionan diagonales con la misma materialidad. De este modo, las columnas en PB quedan dispuestas cada 12,80 m.

En el Subsuelo, las contenciones de taludes que quedan a la vista en los patios se realizan con gaviones. La luz de losas se acorta a 6,40 m aprox, disponiendo columnas intermedias.

>ENVOLVENTE
Se propone un muro-cortina con cristales tipo “Evergreen” de VASA, con DVH, lámina de baja emisividad, alta transmisión de luz visible y alto coeficiente de sombra. El módulo es de 3,20 de ancho por 3,60 de alto, dividio en cuatro paños horizontales de 0,90 m, de altura; con ventanas proyectantes para permitir ventilación natural cruzada.

La envolvente acristalada se protege con:

>Parasoles al N, horizontales: Aleros de parrilla de tubos de aluminio anodizado

>Parasoles al E y O, verticales: paneles de chapa perforada de aleación de zinc y aluminio, con bastidores y pasarelas de mantenimiento de rejillas de acero galvanizado

>Paneles fotovoltaicos (generación de energía eléctrica) y colectores solares (calentamiento de agua para calefacción y provisión de agua caliente), alternados en cada tira en la cubierta. Reducen la incidencia solar sobre la misma en un 50% aprox.

>responsabilidad ambiental y eficiencia

>ESTRATEGIAS DE DISEÑO BIOCLIMATICO

Se propone la utilización de baterías de paneles fotovoltaicos para la generación de energía eléctrica y de colectores solares para calentamiento de agua para calefacción y provisión de agua caliente. Se utiliza para ello la totalidad de la superficie de azotea, disponiendo allí los paneles y colectores orientados al norte en tiras dispuestas en el sentido longitudinal de los edificios, integrándolos de este modo a la arquitectura del conjunto.

Las fachadas con mayor exposición (norte, este y oeste) se protegen con parasoles orientados de acuerdo a la orientación y los ángulos de incidencia solares. Al no ser completamente opacos, los parasoles brindan suficiente protección a la vez que tamizan y permiten un óptimo aprovechamiento de la luz natural. Finalmente, sistemas de cortinas tipo “Roller Screen” completan el control de la incidencia solar.

En las plantas altas, los cerramientos son constituidos por cristales tipo “Evergreen” VASA, DVH, con lámina de baja emisividad, alta transmisión de luz visible y alto coeficiente de sombra; con ventanas proyectantes en cada módulo de 3.20mts para permitir ventilación natural cruzada, minimizando las necesidades de ventilación y refrigeración mecánicas, evitando innecesarias y costosas dobles pieles.

En los subsuelos la disposición de patios ingleses permite del mismo modo la iluminación y ventilación cruzada de los principales ambientes.

La iluminación interior se logra a partir de bandejas, una parte de las luces ellas orientadas hacia el cielorraso para iluminar de modo indirecto, efecto que genera claridad suave y amplía la percepción del espacio.
Los espacios de trabajo se complementan con lámparas de escritorio, que permiten aplicar la iluminación en los planos de trabajo, disminuyendo el consumo general con mejor efecto lumínico.

Por último, se plantean azoteas verdes, cubiertas con herbáceas de bajo o nulo requerimiento de riego para brindar mayor protección térmica al edificio, contribuir a la reducción del efecto de “isla de calor” y ralentizar el escurrimiento de aguas de lluvia.



>ESPACIO URBANO

Al conservar prácticamente la totalidad de los árboles existentes y disponer nuevas hileras de tipas, plantando (o trasplantando allí ejemplares adultos) se minimiza la incidencia solar sobre las fachadas de los edificios, y en los espacios parquizados alrededor de los mismos.

Para garantizar el mínimo de impermeabilización de suelos, los estacionamientos se pavimentan con solado tipo “Gardenbloc”, permitiendo el tránsito de vehículos, el crecimiento de césped y la absorción de agua de lluvia.

Los vidrios reflectivos utilizados para las fachadas que rodean el patio posibilitan una mayor claridad en el patio y reflejan las copas de los árboles.



>FLEXIBILIDAD, MANTENIMIENTO Y ECONOMÍA DE RECURSOS

La flexibilidad se consigue con definiciones sencillas pero decisivas: vincular un sistema estructural de mínimos condicionamientos, con la posibilidad de dotar de adecuada ventilación e iluminación a cada módulo de cerramiento de carpintería (y por lo tanto máxima flexibilidad de disposición de locales cerrados), versatilidad de disposición de instalaciones de oficina mediante un piso técnico y sistemas de iluminación dispuestos en bandejas a lo largo de las plantas.
En todos los casos los materiales elegidos para los cerramientos y para el equipamiento básico del edificio tienen muy bajos requerimientos de mantenimiento y son fácilmente adaptables a diferentes configuraciones de uso.



>innovación
En un enfoque multidimensional de la innovación es posible distinguir
• Innovación como novedad: En la dimensión objetiva de la innovación observamos la singularidad de artefactos, productos, métodos o servicios hasta ahora desconocidos y sin precedentes hasta el momento.
• Innovación como cambio: En la dimensión temporal, las innovaciones se nos presentan como nuevos procesos (los que por su parte conducen, en todo caso, a artefactos novedosos) en el sentido de transformaciones, de difusiones o simplemente de cambios.
• Innovación como ventaja: En la dimensión social nos referimos a formas nuevas de ventajas, que van acompañadas de nuevas formas de administrar la interpelación del público al que se orientan y que pueden verse como progreso o adelanto

Respecto a la primera de las dimensiones citadas, este proyecto está lejos de pretender constituirse en una singularidad sin precedentes dentro de la disciplina arquitectónica: por el contrario, pretende valerse de los recursos que la disciplina ya nos demuestra como probados, y ponerlos de manifiesto sin artificios, con contundencia.
Respecto a la dimensión de la innovación como cambio, como difusión de nuevos procesos, este proyecto sí pretende marcar una tendencia respecto al modo de insertar edificios institucionales en entornos parquizados, con respeto por el paisaje: y con austeridad en su arquitectura, que ponga de relevancia la belleza de los espacios exteriores.
Y respecto a la última de las dimensiones de la innovación citadas, la dimensión social: creemos que este tipo de arquitectura hará visible y tangible para los habitantes de Buenos Aires estos nuevos modos de inserción y relación de los edificios institucionales en entornos paisajísiticos de calidad; haciéndolos percibir como positivos, y superadores del anterior modo de concentración de edificios en el centro porteño, para lograr una ciudad más equilibrada y sostenible urbanísiticamente.