Instituto Conjunto de Conducción Estratégica - Mención Honorífica

Concurso FADU Ministerio de Seguridad de la Nación



Tipo: Edificio Institucional - Concurso

Ubicación: Partido de Lanús, Provincia de Buenos Aires, Argentina.

Superficie: 3200m2

Estado: Proyecto
Año: 2017

Rol desempeñado: autores del proyecto concursado.

Créditos:
Proyecto: estudio nodo + C4 arquitectos
Equipo de trabajo: arq. Martín Gallino, arq. Maximiliano Mineo, arq. Julián Cortiñas, arq.Jorge Cortiñas, arq. Luciano Cortiñas, arq. Eugenia Cortiñas    





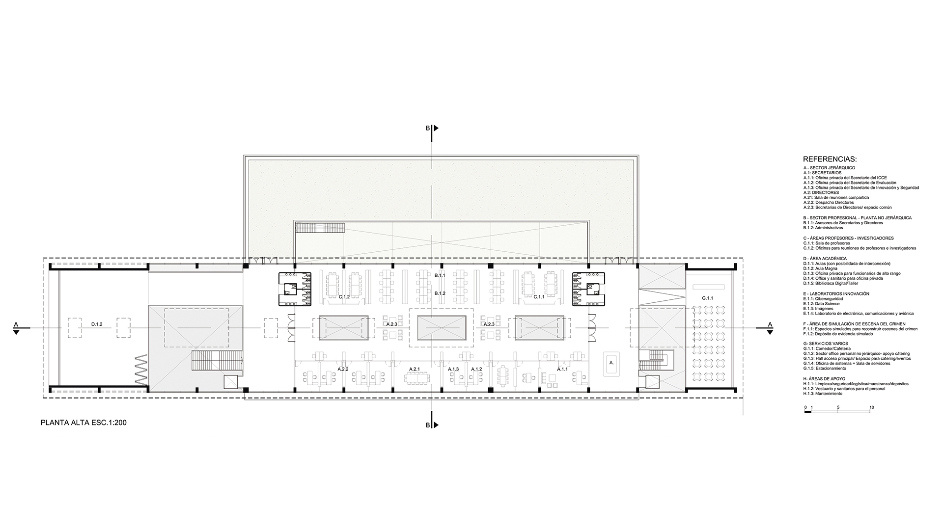
Poner en valor la estructura existente significa reconocer la potente espacialidad de la bóveda; el espacio en planta alta destinado a las oficinas jerárquicas y a la dinámica propia del programa estará determinado espacialmente por la presencia permanente de la lamina curva de la cubierta existente.
La planta baja será el sustento para esta lograr dicha configuración espacial, resolviendo el programa académico en una pastilla que sobresale de la edificación existente.  









Poner en valor la estructura existente significa reconocer la potente espacialidad de la bóveda al tiempo que su labilidad debido al mucho tiempo de abandono; su carácter de cuasi ruina. Por lo tanto, acumular varios pisos en su interior, aunque sean de ocupación parcial, no solo compromete el reconocimiento del espacio sino que plantea un dilema constructivo. Sin necesidad de un estudio de suelos, sabemos que en los bordes del Riachuelo, se funda por pilotaje (excepto los edificios con solo un piso alto que admiten zapata corrida o platea). El pilotaje para alturas medias no solo es ineficiente (porque es costoso y no se aprovecha el potencial de carga) sino, y lo más grave en este caso, que  el trabajo de una piloteadora dentro de la construcción existente acarrea un alto riesgo de provocar su colapso. Por ello, una lectura del programa reconociendo dos sectores diferenciados: a) un aulario, laboratorios y biblioteca, (donde se mueven la mayor parte de los usuarios); con vocación de planta baja y b) el resto de los usos, más jerárquicos, en un único nivel superior resulta la solución más consistente en relación a las pre- existencias.

Para fundar un piso alto basta con una losa de Hº Aº sobre el contrapiso existente a modo de platea y una multiplicidad de posibles soluciones para materializar el entrepiso. El único punto algo más complejo es el piso del aula magna, que al desarrollarse sobre la vía pública requerirá una estructura metálica de rápido montaje para  interrumpirla por tiempos mínimos.

Esta solución implica una cierta pisada por afuera del cobijo de la bóveda. Sin embargo, en  el gráfico de futuro crecimiento, se verifica que este esquema permite hacerlo en forma modular, plásticamente coherente y sin interferencias con el funcionamiento.

Insistimos en que la espacialidad de la bóveda es seguramente el legado más potente de la estructura a recuperar. Es por esto que el proyecto propone recuperarla y ponerla en valor. La planta alta, una gran planta libre, está estructurada y articulada por los puntos fijos sanitarios, los cierres mínimos y necesarios y el equipamiento de las oficinas.  En esta planta, con tres instancias espaciales, el aula magna-foyer, las oficinas y el comedor, el espacio está determinado por la presencia permanente de la de bóveda. La planta baja toma contacto con esta en tres momentos: en el hall de acceso principal, en la circulación de las aulas y finalmente, en el hall de acceso secundario, antesala del aula de criminalística.

Hasta hace poco tiempo, esta decisión espacial hubiera tropezado con la dificultad de acondicionar climáticamente un gran volumen. Hoy, la tecnología de vigas frías (chilled beams), ya utilizada en la sede del gobierno de la CABA proporciona la solución adecuada.

“Las Vigas Frías (Chilled Beams) son sistemas energéticamente eficientes, que combinan enfriamiento radiante y ventilación convencional superior para así reducir el uso de energía, mejorar los niveles de confort y reducir el impacto arquitectónico de la ductería y otros sistemas mecánicos. El entusiasmo hacia esta tecnología está soportado por los importantes ahorros de energía que se pueden obtener, que pueden ser desde un 20% y hasta un 50%, dependiendo del tipo de sistema, del clima y del edificio.” “En ninguno de los dos sistemas, activo o pasivo, existen partes en movimiento por lo tanto típicamente son de larga vida y de bajo costo de mantenimiento. Dependiendo del tipo de sistema utilizado, se puede requerir hasta un 50% menos ducto que el utilizado en un sistema ­convencional.” “Los fabricantes ofrecen ahora Vigas Frías Multi-­Servicio. Éstas son unidades individuales que adicionalmente incluyen iluminación, rociadores contra incendio, bus de datos, etc. Combinando uno o varios de estos elementos en una sola unidad, se ofrece simplicidad en la instalación y un ahorro importante en los costos de mano de obra.”          

Completando la idea- síntesis, se plantea la reconstrucción de las parte de la estructura a demoler re utilizando las bases y  las columnas recuperables, prolongando la bóveda, con tecnología a analizar, no necesariamente alivianada con ladrillos huecos como la existente.

El planteo constructivo es económico porque una vez recuperada la condición estable de la estructura (parte de lo solicitado), la construcción a realizar es de tecnología muy básica, realizable por empresas y mano de obra de nivel medio. Complementariamente, y con la misma lógica, los aventanamientos  de aluminio se proponen inscriptos dentro de la estructura y la protección solar de los lados largos (NE, SO) con paneles  de chapa perforada que acentúan la imagen de volumen único y contundente.         

Dado que el espacio exterior queda casi totalmente tomado por el estacionamiento (que se propone íntegramente forestado) se vincula la terraza de los laboratorios con el patio de modo de generar un espacio exterior de uso controlado.     

Queda para un desarrollo posterior la articulación del edificio con fuentes externas de energía: electricidad, gas, agua corriente y cloacas (redes sobre las que se carece de información). Asimismo la utilización de pantallas solares, disposición de aguas grises, etc. Como anticipo de una actitud frente al uso de energía, se resuelve la ventilación cruzada por medio de chimeneas de salida en la parte superior de la bóveda combinadas con lucarnas que contribuyan a generar un espacio  luminoso. En la parte superior, estas lucarnas quedarían flanqueadas por pasarelas de mantenimiento y baterías solares.>fundamentación conceptual de la arquitectura propuesta