Edificio para la Educación del Futuro

PROYECTO SELECCIONADO
Concurso Internacional de anteproyecto SCA-Fadea


Tipo: Edificio Institucional - Concurso

Ubicación: Parque de la Innovación, CABA, Argentina.

Superficie: 10.700m2

Estado: Proyecto
Año: 2019

Rol desempeñado: autores del proyecto concursado.

Créditos:
Proyecto: estudio nodo + C4 arquitectos + arq. Gabriela Sexer
Equipo de trabajo: arq. Martín Gallino, arq. Maximiliano Mineo, arq. Julián Cortiñas, arq.Jorge Cortiñas, arq. Luciano Cortiñas, arq. Eugenia Cortiñas, arq. Nicolás Frerking, arq. Natalia Merino    







La innovación y el cambio permanentes son condición y desafío de contemporaneidad. Condición y desafío difíciles, que se enfrentan con el saber arquitectónico  en su naturaleza, más afecta a lo sólido y durable, cuando esta cualidad de solidez  se disuelve en el aire. En esta circunstancia particular, solo el volumen es la única certeza, fijo e inconmovible.
El desafío se incrementa al proponer el primer hito de un desarrollo urbano hasta ahora concentrado en el sur de la ciudad  y en una volumetría vertical, no canónica para usos educativos.









“el presente es breve, el pasado cierto, el futuro dudoso” Seneca

“La inteligencia de las personas se mide por la incertidumbre que pueden soportar” I. Kant

La innovación y el cambio permanentes son   condición y desafío de  contemporaneidad. Condición y desafío difíciles, que se enfrentan con el saber arquitectónico  en su naturaleza, más afecta a lo sólido y durable, cuando esta cualidad de solidez  se disuelve en el aire. En esta circunstancia particular, solo el volumen es la única certeza, fijo e inconmovible, producto de un concurso cuyos contenidos estaban todavía en ciernes, dado que el programa, que solía ser el cimiento proyectual indiscutible, se manifiesta plagado de indefiniciones que otrora podrían haber sido lagunas y no son, quizás, nada más y nada menos que manifestaciones de la esencia misma del problema. El desafío se incrementa al proponer el primer hito de un desarrollo urbano hasta ahora concentrado en el sur de la ciudad  y en una volumetría vertical, no canónica para usos educativos

¿Cómo se enfrenta entonces  la concepción del contenedor de una actividad todavía en gestación con las herramientas de un saber con pretensión de dar continente firme a esa modernidad líquida? La forma del agua es la del vaso que la contiene, ¿pero es la más adecuada cuando sabemos y es una de nuestras pocas certidumbres,  que terminado el proceso de concurso, proyecto y obra, (no menos de un lustro), las necesidades y los instrumentos habrán cambiado? Los laboratorios investigarán otros materiales (ayer sílice, hoy litio, ¿mañana?) y sujetos, las bibliotecas (si conservan ese nombre)  utilizarán otros soportes, las aulas servirán para relacionar aprendices y maestros con nuevos métodos.

Sin embargo, la forma del vaso contenedor, su símil estructural con un organismo vivo en cuanto a piel, carne y huesos comporta decisiones importantes en este proceso, porque así como la naturaleza premia la adaptabilidad con supervivencia, la historia premia a los edificios cuya tipología acepta la flexibilidad en el uso. La basílica inventada por los romanos para la asamblea configura los templos de la cristiandad y resuelve los intercambiadores ferroviarios de la modernidad.

Flexibilidad es la constante y la condición.

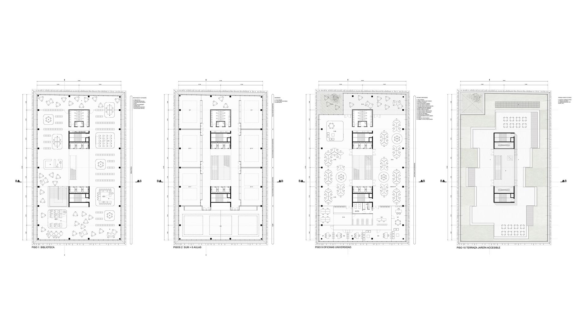
Estructura. El organismo que proponemos tiene en su centro un núcleo duro que alberga funciones irreemplazables: los desplazamientos verticales de contingentes numerosos, los servicios de apoyo y las canalizaciones de fluidos y energía. Pero a la vez, por su carácter de elemento inmodificable, se comporta como parte fundamental de la estructura, para tomar sus cargas verticales y como contravientos. Columnas modularmente distribuidas en el perímetro completan el apoyo para las cargas verticales. Las losas, de construcción  alivianada y continua se apoyan en el núcleo y  vigas de completamiento del tabique en su perímetro y otro  sistema  exterior de vigas encadenando las columnas en el perímetro exterior. Uno de los bordes longitudinales de las columnas exteriores reconoce la única estructura de transición,  configurando los accesos y cabinas técnicas del auditorio y liberando completamente la planta. La cubierta de gran luz del auditorio se resuelve con vigas postesadas ordenadas según la modulación general.

Piel. La piel de vidrio se complementa a partir de la altura normativa con un sistema de parasoles configurando un sistema eficiente de control de los flujos calóricos y por tanto de ahorro energético: fachada ventilada. Pasarelas cribadas a la altura de las losas permiten el mantenimiento y limpieza del sistema sin silletas ni estructuras auxiliares. La palabra piel adquiere su significado orgánico de relación dinámica con el exterior a diferencia de un cerramiento común que oficia solo de frontera.

Acondicionamiento. El sistema más adecuado por su versatilidad para este edificio y programa es el VRF con máquinas en las azoteas y equipos zonales en los cielorrasos  que permiten acondicionar cada sector de acuerdo a sus necesidades al punto de poder entregar calor y frío simultáneamente en distintos sectores. El salón de actos tendrá su propio sistema autónomo

La carne del edificio es la musculatura perimetral de espacios flexibles, adaptados al programa y adaptables a programas futuros mediante la renovación de tabiques, instalación de conductores multifilares y equipamiento.

Una mención especial cabe para el plano noble, que  se desarrolla en dos niveles: 0,00 y – 5,00 integrados espacialmente. En particular, el nivel inferior, vinculado a los accesos enfrentados del salón de actos y un patio-jardín, pierde su condición de subsuelo para adquirir un gran protagonismo en las actividades especiales y en la cotidianeidad del emprededorismo, la administración del parque y una cantidad de funciones dinámicas vinculadas al acceso multinivel.

En estos dos niveles se potencia la tensa relación entre la simetría de las  plazas de acceso que propone el plano urbano y el doble torcimiento del eje compositivo: Plaza, quiebre al acceso. Acceso, quiebre a la longitunalidad de las plantas. Estos recorridos, recreando la promenade architectural, reconoce en su sistema de espacios públicos la trama de vacíos, vías y pasajes propuestos por el proyecto urbano.

Por último, retomando el concepto urbanístico clásico de hito, en una propuesta tan lejana a Camilo Sitte en su modernidad geométrica como cercana en la idea de monumento-referente, el edificio se postula como la centralidad focal y de contenidos de la nueva urbanización, materializando el color rojo simbólico asignado al volumen en el modelo inicial. Sin embargo, en ese carácter de pieza modélica, el edificio opta por un carácter austero y de síntesis, desechando la retórica de torre Velasca para ceder el protagonismo significante a la educación del futuro.